Баня Австрия из клееного бруса - прекрасная возможность вдохновиться и проникнуться атмосферой полноценного отдыха на природе!
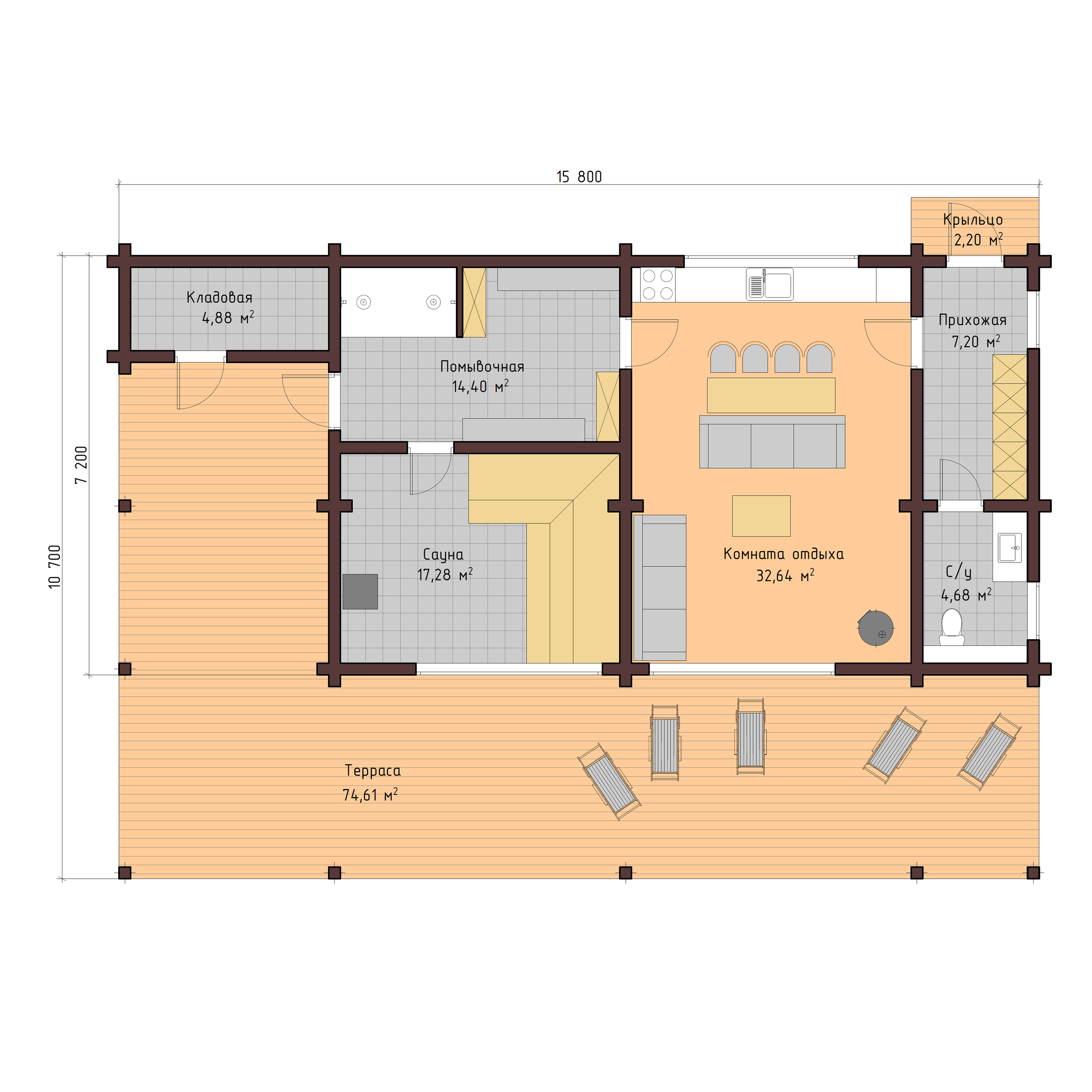
Внешний облик бани при резиденции "Австрия" привлекает своей безупречной эстетикой и незамысловатой лаконичностью. В объемно-планировочном решении нет ничего лишнего, фасады просты и минималистичны. При этом каждая деталь находится на своем месте, выглядит выразительно и стильно. Удачно выбранные теплые оттенки натурального дерева в экстерьере подчеркивают завершенный образ уютного домика, куда непременно захочется заглянуть и провести в нем время.
Рассчитанная на компанию из нескольких человек, баня отличается просторными габаритами, но смотрится очень легко и воздушно. Это то самое место, где будет приятно расслабиться, отдохнуть и душой, и телом в любое время года.


Передовые технологии производства клееного бруса и безупречное качество строительства домов – это Holz House.
Наша цель - это создание качественного продукта и производства, которое ориентируется не на локальные требования, а на самые строгие мировые стандарты.
Пишите
илиоставьте заявку
— ответим на вопросы, расскажем о сроках и стоимости.






