Куинстаун
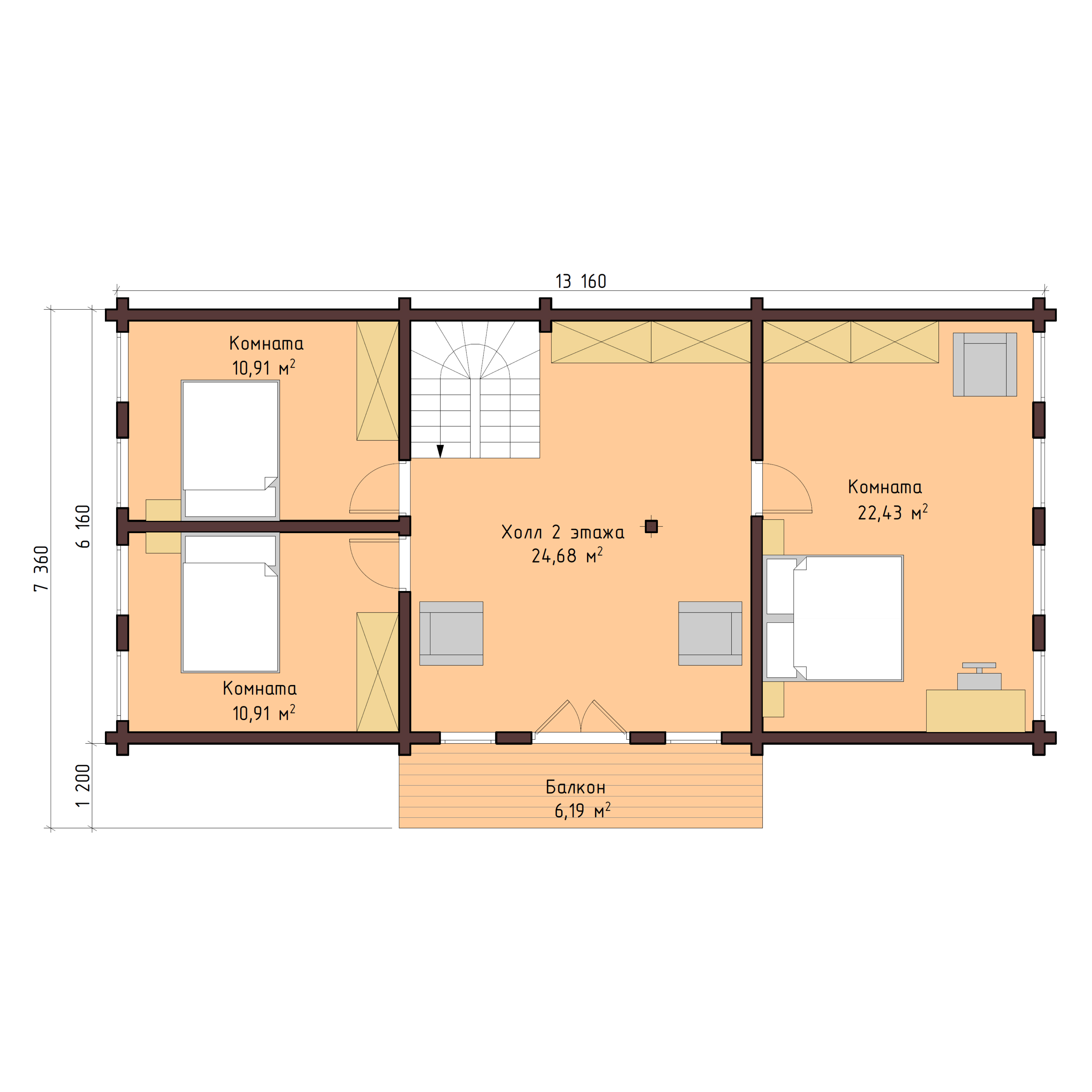
На первом этаже бани «Куинстаун» помимо банных помещений располагается просторная кухня-гостиная с выходом на широкую террасу перед домом. Второй этаж отведен под спальни и холл с выходом на балкон. Площадь бани - 188 кв. метров. Здесь комфортно может расположиться большая компания!
Небесно-голубой цвет фасадов и нежно-белая окантовка кровли, дверей и окон создаёт сказочную атмосферу. Ее поддерживает и необычный ландшафтный дизайн.
Оставить заявку
1 этаж

2 этаж

Общая площадь:
Площадь 1 этажа:
Площадь 2 этажа:
Площадь помещений:
Площадь террас и балконов:
Этажность:
Количество спален:
Количество санузлов:
188,27 м²
70,53 м²
68,93 м²
139,46 м²
48,81 м²
2
3
1
7
Комплектации проекта Куинстаун
Передовые технологии производства клееного бруса и безупречное качество строительства домов – это Holz House.
Строим дома только из клееного бруса собственного производства
Наша цель - это создание качественного продукта и производства, которое ориентируется не на локальные требования, а на самые строгие мировые стандарты.
Поможем пройти путь от идеи до готового дома. Пишите или оставьте заявку — ответим на вопросы, расскажем о сроках и стоимости.
Поможем пройти путь от идеи до готового дома.
Пишите
илиоставьте заявку
— ответим на вопросы, расскажем о сроках и стоимости.Популярные статьи
Все статьи06.11.2025

Пруд на участке загородного дома: строительство, обустройство и уход
Когда мы строим дома из клееного бруса, то часто слышим от клиентов: "Хочу пруд, как на картинке". Но искусственный пруд на участке — это не просто красивая фотография. Для владельцев загородных домов собственный пруд.
06.11.2025
13.10.2025

Датчики дыма в деревянном доме: типы и принципы работы
Установка датчиков дыма в доме из клееного бруса – это не просто формальность, а критически важный элемент системы безопасности, обусловленный спецификой дерева как строительного материала.
13.10.2025
02.04.2025

Теплый пол в доме: какой выбрать - водяной или электрический
Теплый пол в частном доме не только улучшает микроклимат, но и способствует экономии энергии, так как позволяет поддерживать оптимальную температуру при меньших затратах. В результате, теплый пол в частном доме становится идеальным решением для создания уюта.
02.04.2025




