Эра
Глядя на этот просторный и светлый дом, выполненный из клееного бруса, на ум приходит аллюзия на роскошное уютное ранчо для большой семьи. Кажется, что сама задумка этого проекта подразумевает немалый размах: здесь неуместно экономить пространство, а конструкция и внутренняя планировка здания щедро распределили территорию, не скупясь на дополнительные террасы и отдельную летнюю кухню. Стилистическое решение дома навеяно тягой к свободе и респектабельности.
Оставить заявку
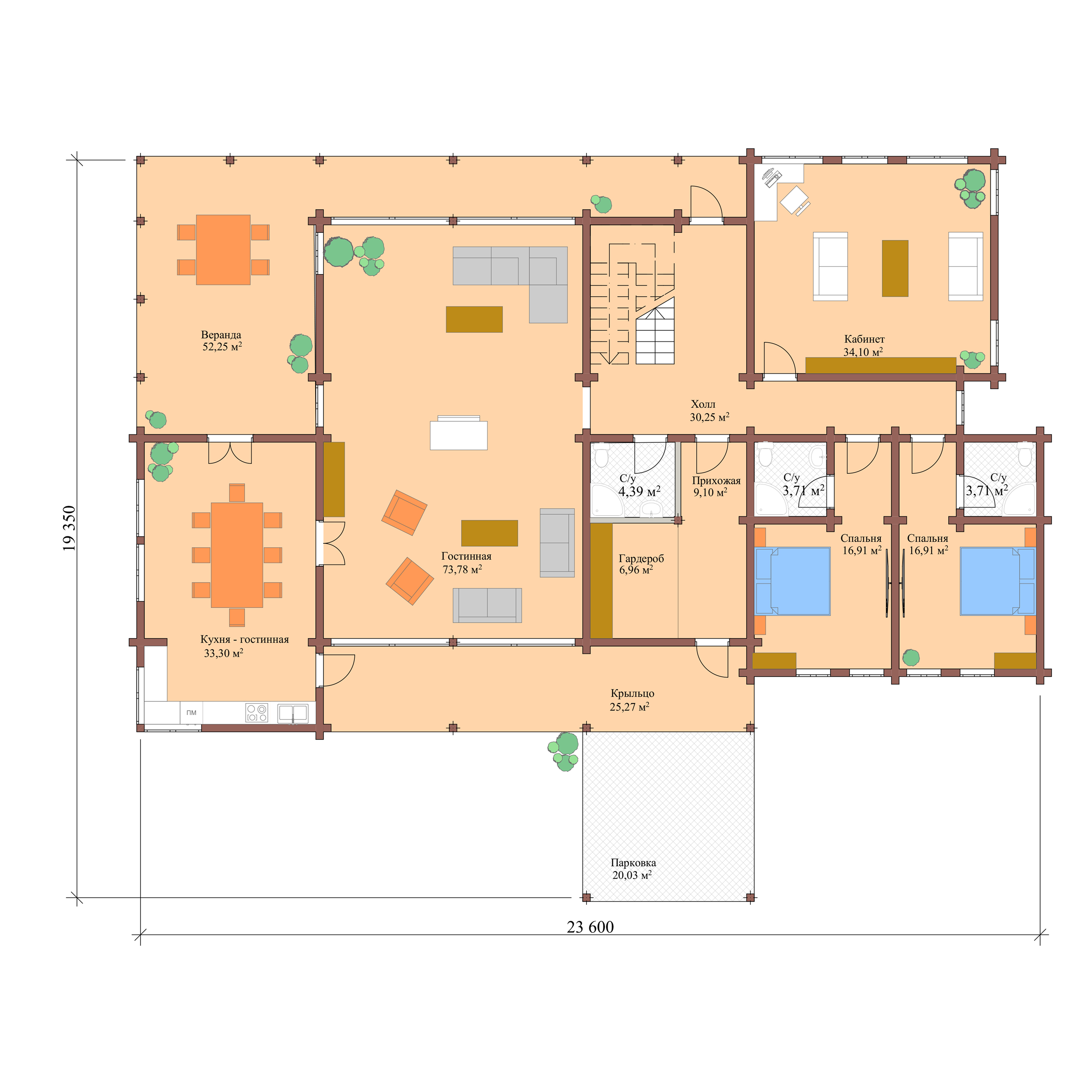
1 этаж

2 этаж

Общая площадь:
Площадь 1 этажа:
Площадь 2 этажа:
Площадь помещений:
Площадь террас и балконов:
Этажность:
Количество спален:
Количество санузлов:
458 м²
310,7 м²
147,3 м²
358,7 м²
99,3 м²
2
5
6
43
39
Комплектации проекта Эра
Передовые технологии производства клееного бруса и безупречное качество строительства домов – это Holz House.
Строим дома только из клееного бруса собственного производства
Наша цель - это создание качественного продукта и производства, которое ориентируется не на локальные требования, а на самые строгие мировые стандарты.
Поможем пройти путь от идеи до готового дома. Пишите или оставьте заявку — ответим на вопросы, расскажем о сроках и стоимости.
Поможем пройти путь от идеи до готового дома.
Пишите
илиоставьте заявку
— ответим на вопросы, расскажем о сроках и стоимости.Популярные статьи
Все статьи06.11.2025

Пруд на участке загородного дома: строительство, обустройство и уход
Когда мы строим дома из клееного бруса, то часто слышим от клиентов: "Хочу пруд, как на картинке". Но искусственный пруд на участке — это не просто красивая фотография. Для владельцев загородных домов собственный пруд.
06.11.2025
13.10.2025

Датчики дыма в деревянном доме: типы и принципы работы
Установка датчиков дыма в доме из клееного бруса – это не просто формальность, а критически важный элемент системы безопасности, обусловленный спецификой дерева как строительного материала.
13.10.2025
02.04.2025

Теплый пол в доме: какой выбрать - водяной или электрический
Теплый пол в частном доме не только улучшает микроклимат, но и способствует экономии энергии, так как позволяет поддерживать оптимальную температуру при меньших затратах. В результате, теплый пол в частном доме становится идеальным решением для создания уюта.
02.04.2025




