Австрия v2
Легендарный дом из клееного бруса - премиальное шале для большой семьи. «Австрия» – это премиальное шале большой площади, где есть все необходимое для комфортной и счастливой жизни семьи из 4-6 человек.
«Австрия» сочетает в себе лучшие качества современного уютного загородного дома для всей семьи. Может быть, это именно ваше идеальное решение для новой идеальной жизни! Воспользуйтесь нашим предложением и реализуйте свою мечту прямо сейчас.
Оставить заявку
1 этаж

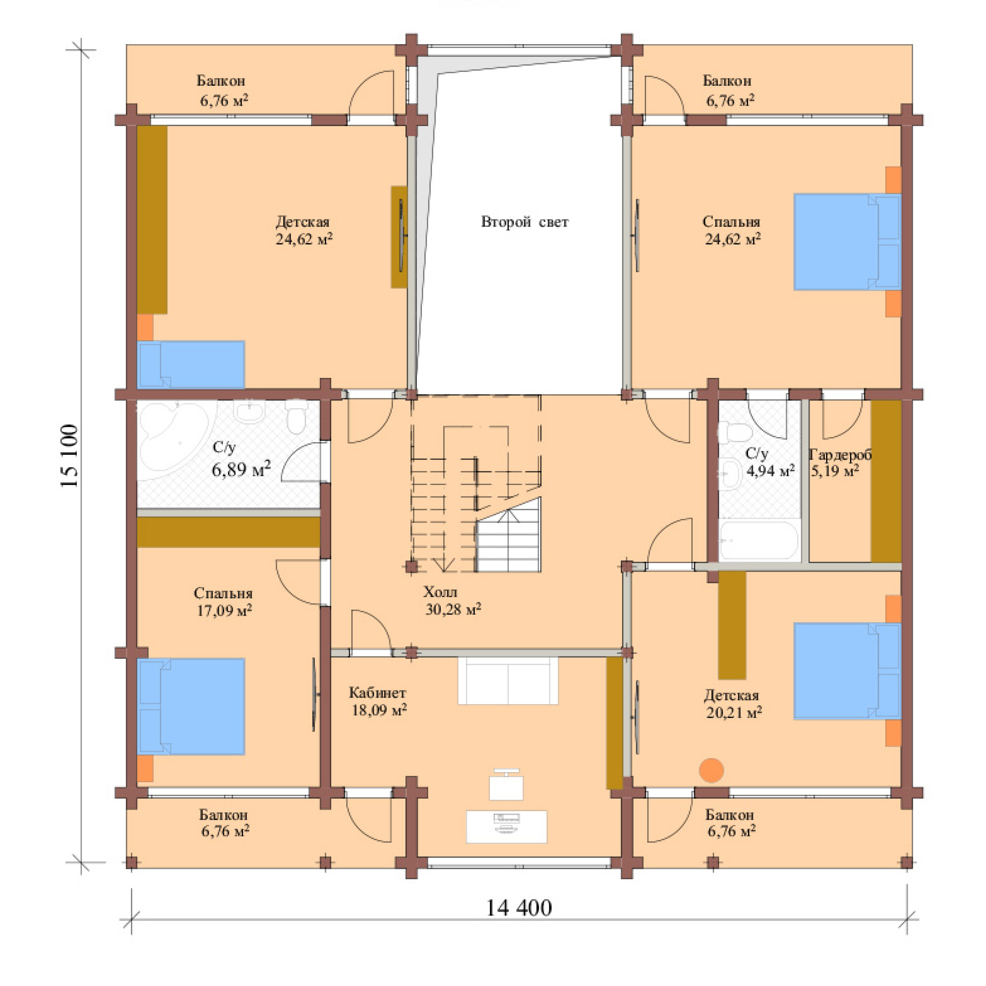
2 этаж

Общая площадь:
Площадь 1 этажа:
Площадь 2 этажа:
Площадь помещений:
Площадь террас и балконов:
Этажность:
Количество спален:
Количество санузлов:
480,94 м²
301,97 м²
178,97 м²
377,4 м²
103,54 м²
2
5
4
67
47
Комплектации проекта Австрия v2
Передовые технологии производства клееного бруса и безупречное качество строительства домов – это Holz House.
Строим дома только из клееного бруса собственного производства
Наша цель - это создание качественного продукта и производства, которое ориентируется не на локальные требования, а на самые строгие мировые стандарты.
Поможем пройти путь от идеи до готового дома. Пишите или оставьте заявку — ответим на вопросы, расскажем о сроках и стоимости.
Поможем пройти путь от идеи до готового дома.
Пишите
илиоставьте заявку
— ответим на вопросы, расскажем о сроках и стоимости.Популярные статьи
Все статьи06.11.2025

Пруд на участке загородного дома: строительство, обустройство и уход
Когда мы строим дома из клееного бруса, то часто слышим от клиентов: "Хочу пруд, как на картинке". Но искусственный пруд на участке — это не просто красивая фотография. Для владельцев загородных домов собственный пруд.
06.11.2025
13.10.2025

Датчики дыма в деревянном доме: типы и принципы работы
Установка датчиков дыма в доме из клееного бруса – это не просто формальность, а критически важный элемент системы безопасности, обусловленный спецификой дерева как строительного материала.
13.10.2025
02.04.2025

Теплый пол в доме: какой выбрать - водяной или электрический
Теплый пол в частном доме не только улучшает микроклимат, но и способствует экономии энергии, так как позволяет поддерживать оптимальную температуру при меньших затратах. В результате, теплый пол в частном доме становится идеальным решением для создания уюта.
02.04.2025




